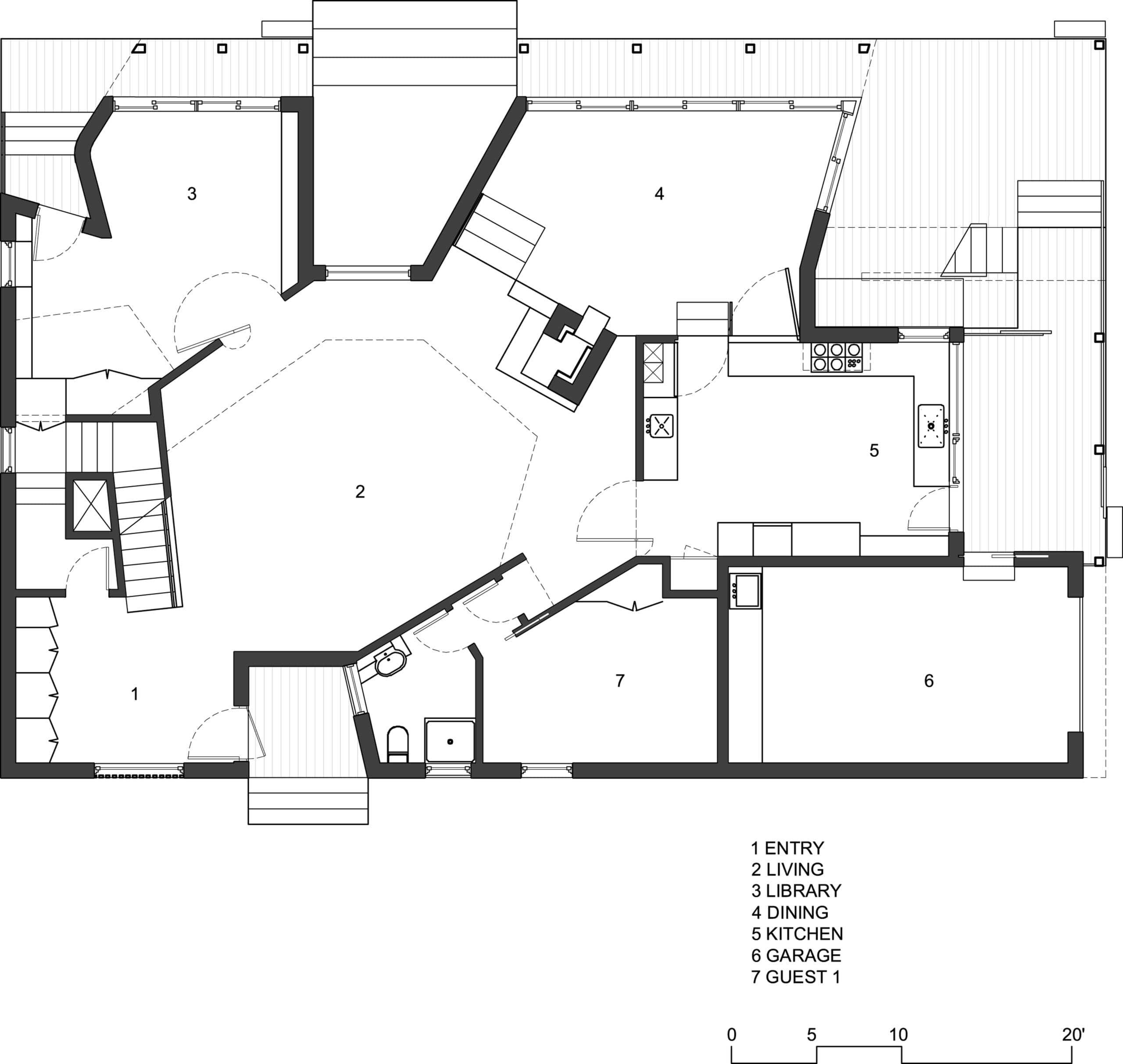
The concept of this linear wooden beach house evolved from the inspiration of the close proximity to the studio of the painter Jackson Pollock. Several free-form designs were made based on the 1949 painting “Seven in Eight.” Opening up the interior to the bay and the north view of the Atlantic Ocean required closing the south side for privacy. The final scheme brackets the internal energy in an open frame, through which the sun projects lines. The strips of white light inscribe and seasonally bend internal spaces dynamically with the daily cycle. The balloon frame construction is comparable to the strip wood sand dune fencing along the ocean. Guest rooms swirl around the double level living room. From the upper court, the ocean is visible.
Location
Long Island, United States
Years
2001–2004
Size
5,500 sq ft
Status
Complete
architect
Steven Holl Architects
Steven Holl (design architect)
Annette Goderbauer (project architect)
Martin Cox, Irene Vogt, Christian Wassmann (project team)
Steven Holl (design architect)
Annette Goderbauer (project architect)
Martin Cox, Irene Vogt, Christian Wassmann (project team)
structural engineer
Silman Associates, PC.
general contractor
Koral Bros. Inc.